Centre logistique DE LA GARE DE PEAGE DE CHIGNIN
Porte de Savoie (74) – Extension et Réhabilitation
Projet réalisé au sein de l’agence : OXYGEN Architecture, en tant que chargé de projet
Missions réalisées : mission complète – ESQ, APS, APD, PRO, DET, AOR
Maître d’Ouvrage : APRR
Montant des travaux : 400 000 €
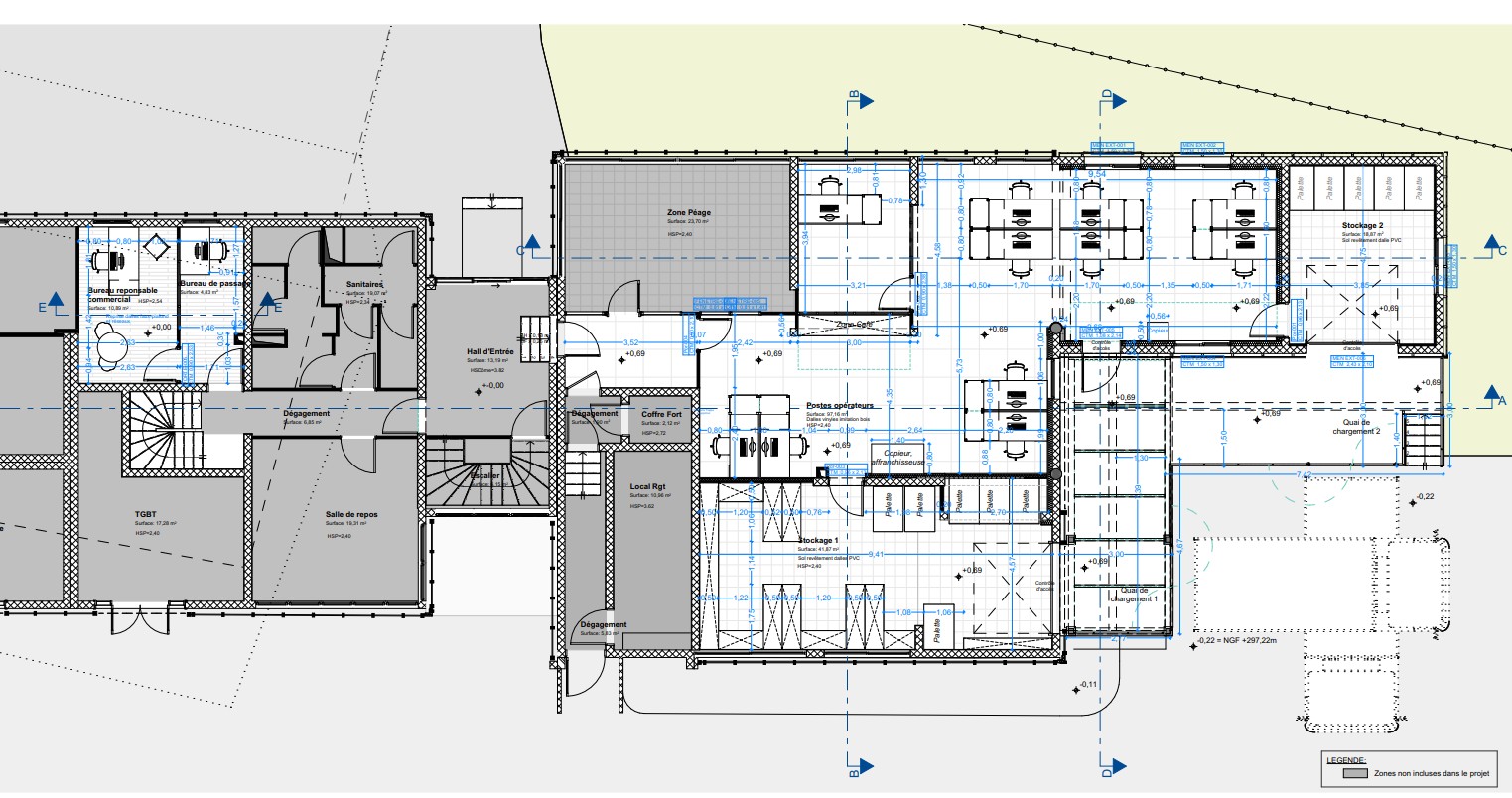
Le projet vise à agrandir les espaces du centre logistique par la création d’une extension et par une réorganisation interne de l’aile est du bâtiment. Il comprend également le réaménagement du quai de chargement, afin de mieux répondre aux attentes fonctionnelles des utilisateurs.
L’objectif principal était d’optimiser le fonctionnement global du site, caractérisé par des flux continus d’entrée et de sortie de marchandises.
Cette transformation a nécessité une analyse fine des circulations internes et des besoins en stockage, afin d’élaborer un aménagement rationnel et performant, adapté aux usages futurs et aux contraintes d’exploitation.
Situé à proximité immédiate du péage autoroutier, l’ensemble bâti, construit dans les années 1990, imposait une écriture architecturale sobre et fonctionnelle.
L’enjeu consistait à assumer clairement l’extension tout en l’intégrant harmonieusement aux façades existantes en murs rideaux.
La nouvelle façade a ainsi été conçue à partir d’un bardage en métal déployé, dont la trame et la composition prolongent les lignes directrices et les proportions du bâtiment d’origine.
Les volumes sont lisibles et clairement définis, complétés par la création d’un auvent protégeant les opérations logistiques extérieures et renforçant la fonctionnalité de l’ensemble.
